Grünenfelder, Domat/Ems
Bauherr: Grünenfelder AG
Kategorie: Neubau
Jahr: 2022
Wenn aus Begrenzung Freiheit wird oder: Ist der Kern fest in der Bewegung, erlaubt er das Spiel mit den Rändern.
Manche Situation und Bauvorgabe sind so eindeutig, dass die Befreiung davon nur durch eine Mauer gelingen kann. Bei so einem paradoxen Ansatz gilt es, die Widerspruchsfreiheit zu beweisen, also der Unmöglichkeit die Möglichkeit zu entlocken und den Kern in die gewünschte Bewegung zu versetzen. An der Lage des neuen Firmensitzes beeindruckt zuerst die Berglandschaft und soll es auch weiterhin tun. Aus einer Vorgabe des Bebauungsplans den Rand betreffend, wurde die unkonventionelle Auslegung einer vertikalen Filterfläche aus Andeer Granit, welche die nahe Umgebung in den Hintergrund und den Berghorizont in den Vordergrund rücken lässt.




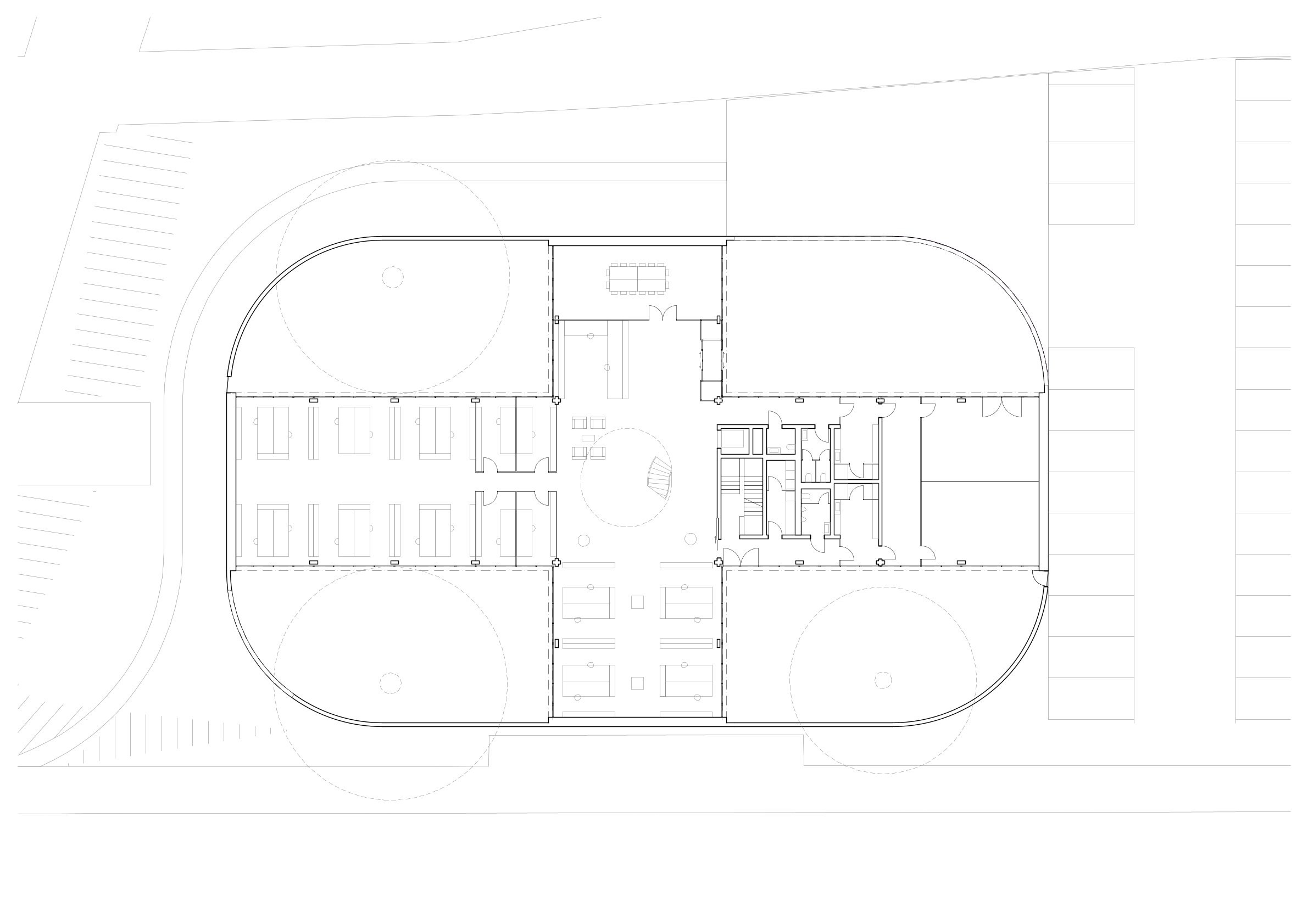
Die Konzeption des Gebäudes wurde radikal von der Kernfunktionalität her gedacht: den Arbeitsplätzen für die Mitarbeiter:innen. Nach Betreten des Eingangsbereiches hält eine fulminante Wendeltreppe aus Eschenholz das Zentrum in Bewegung. So schafft sie die Konzentration auf das Wesentliche und die Wahl der Arbeitsplätze, Besprechungszimmer und Aufenthaltsräume ergibt sich daraus. Bleibt man dieser konzentrierten Anordnung der Kernelemente treu und bündelt ihre Energie, dann wird aus dem notwendigen Abstandshalter zur direkten Bauumgebung ein Freiraum, der sich erst hinter Mauern zeigt. Gepflanzte Gärten setzen den Horizont nach vorn und gestalten den Übergang zur Umgebung von innen nach aussen.

